You might want to visit our global site:

Détails de la solution de gestion et de contrôle du bâtiment

Détails de la solution de gestion et de contrôle du bâtiment

Afin d’évaluer l’impact des différents systèmes de ventilation et de refroidissement sur la performance énergétique et l’empreinte environnementale, nous avons réalisé des calculs détaillés dans IDA ICE (ESBO) à partir d’un immeuble de bureaux fictif. L’analyse compare les systèmes à débit constant, à débit variable et à la demande, ainsi que les solutions de rafraîchissement par l’air et par l’eau. L’étude démontre clairement que le choix du système a un effet significatif sur la consommation d’énergie et sur les émissions de CO₂.

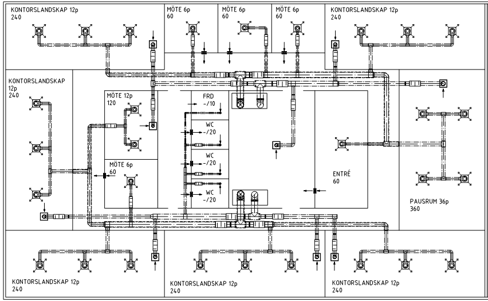
Bâtiment en détail

Bureaux : Nouvelle construction, 5 500 m2, 4 étages, Stockholm.
Chauffage : Chauffage urbain, radiateurs.
Refroidissement : Refroidisseur de liquide à condensation par eau.
Centrale de traitement d’air : 2 unités
Fenêtre : U = 0,7, G = 0,3, dispositif de protection solaire intérieur.
Horaires de bureaux : 6 h - 19 h, du lundi au vendredi (plage horaire de fonctionnement des unités).

Taux d’occupation

  • Bureaux : 90 % - taux d’occupation 50 %.
  • Salle de réunion : 50 % - taux d’occupation 75 %.

Débits d’air

  • Système aéraulique : 36–90 m³/h par personne.
  • Système hydronique : 36 m³/h par personne.

Consignes

  • Air soufflé : Régulation de l’air soufflé en fonction de la température extérieure.
  • Température ambiante : Refroidissement 24 ° C°/chauffage 22 ° C°.
Systèmes de régulation en détail

Débit constant

  • Débit constant dans toutes les pièces (sauf les salles de réunion dotées d’unsystème de rafraîchissement aéraulique*).
  • Les régulateurs de pièce sont connectés à l’automate (DUC) pour la supervision.

Débit variable

  • Débit variable dans les bureaux, salles de réunion et espaces de restauration.
  • Le débit d’air est contrôlé entre une valeur minimale et une valeur maximale.
  • La régulation de la pièce contrôle le chauffage, le refroidissement et la qualité de l’air. Il est connecté au DUC pour la supervision.

Système climatique à la demande

  • .Débit d’air modulé sur demande dans les bureaux, les salles de réunion et les espaces de restauration.
  • Le débit d’air est régulé entre une valeur minimale, un niveau d’occupation intermédiaire et une valeur maximale.
  • Une communication sans fil (WISE) permet de superviser et de réguler le chauffage, le refroidissement et la qualité de l’air.

*Pour répondre aux exigences de l’Autorité nationale suédoise du logement, de la construction et de l’aménagement concernant les constructions neuves (valeur énergétique primaire ≤ 70 kWh/m²/an), les salles de réunion doivent être équipées d’un système à débit variable.

Bases de données et sources

Coût de l’énergie

  • Coût moyen en 2023.
  • Électricité : EUROSTAT.
  • Chauffage urbain  : valeur moyenne issue de cinq fournisseurs suédois.

Émissions de CO2

  • Électricité : Carbon Footprint LTD (www.carbonfootprint.com).
  • Chauffage urbain  : Värmemarknadskommittén [Comité suédois du marché du chauffage] (VMK) .

Autres sources

Vous souhaitez en savoir plus ?

Chez Swegon, nous prenons très au sérieux notre responsabilité dans la réduction des émissions de gaz à effet de serre. Grâce à nos solutions à haute efficacité énergétique en matière de chauffage, de refroidissement et de ventilation, nous contribuons à réduire les émissions de dioxyde de carbone liées à l’exploitation des bâtiments - et participons ainsi à un avenir plus durable.

Contactez-nous